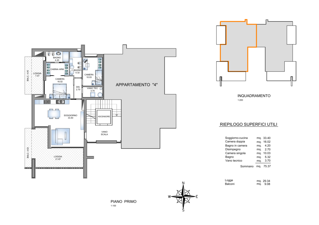
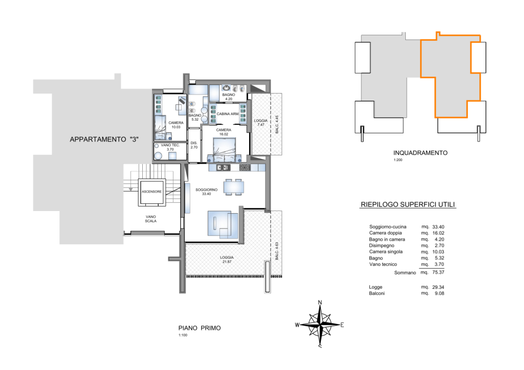
Situato in una zona tranquilla e ben collegata, il Residence Ambra è la scelta ideale per famiglie e professionisti attenti all’ambiente. Questo progetto innovativo e sostenibile unisce un design moderno a tecnologie avanzate per creare un’abitazione a zero emissioni, dove confort abitativo ed efficienza energetica sono al centro della vita quotidiana.
.png)
Risparmio energetico
riduzione fino al 90% del consumo energetico rispetto alle abitazioni tradizionali!(fabbisogno energetico inferiore a 15 kWh/mq annuo).
.png)
Isolamento termico
mantiene una temperatura confortevole tutto l'anno, riducendo la necessità di riscaldamento e raffrescamento.
.png)
Comfort abitativo
garantisce qualità dell’aria interna, silenziosità e benessere.
.png)
Sostenibilità
meno emissioni di CO₂, più rispetto per l’ambiente.
Residence Ambra rappresenta un nuovo standard abitativo, dove innovazione e sostenibilità convivono per migliorare la qualità della vita.
.png)
NESSUNA SPESA DI INTERMEDIAZIONE
Acquistando direttamente da Gruppo Mav s.r.l., non sono previste spese di intermediazione.
.png)
PAGAMENTI PERSONALIZZATI
Offriamo soluzioni di pagamento personalizzate, adattabili alle esigenze finanziarie di ogni acquirente.
.png)
FINANZIAMENTO
Gruppo Mav offre una consulenza gratuita con un agente finanziario, per supportarti nel percorso di acquisto della tua nuova casa. Inoltre, mettiamo a disposizione la possibilità di finanziare fino al 100% del prezzo dell'immobile, per rendere il tuo investimento ancora più accessibile.